蘇州酒店大樓高達20多層,無論身處何處都能一覽周邊湖光山色,夜景可與黃浦江媲美。高檔的酒店配套設施檔次自然也不會低,用于室內垃圾果皮紙屑收集的桶也是找欣方圳專業垃圾桶廠家定制,采用304#不銹鋼材質定制表面電鍍古銅色高檔美觀,擺放于室內使用,只要保養得當非人為損壞10年都不用更換。另外蘇州酒店超大的恒溫游泳池即使在冬天都能暢游,還能坐在泳池邊欣賞完美的湖光水景和新蘇州城市天際線,高檔酒店配高檔定制垃圾桶,絕配!
.jpg)
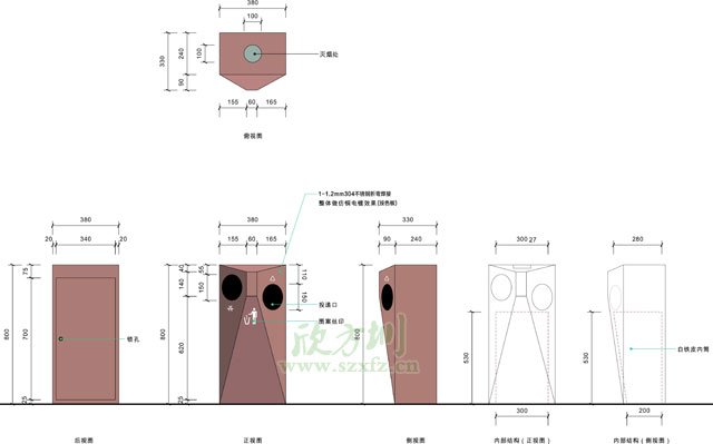
蘇州酒店這款JP95精品酒店定制垃圾桶尺寸規格為380*330*800mm,外筒用304不銹鋼足1.0mm厚度拉絲板制作生產,內筒0.4mm厚度鍍鋅板分2格制作,外筒電鍍顏色,并做防指紋處理,圖案絲印,焊口平整光滑。電鍍古銅色使產品防銹蝕能力升級,大大延緩銹蝕時間,更耐用。上口滅煙處,不銹鋼煙盅直徑120mm。
蘇州酒店定制304不銹鋼電鍍古銅色垃圾桶生產設計圖:

.jpg)

蘇州酒店定制304不銹鋼垃圾桶工廠產品展示

蘇州酒店定制304不銹鋼垃圾桶設計圖

蘇州酒店定制304不銹鋼垃圾桶開料焊接半成品圖
來源欣方圳廠家垃圾桶網:http://www.delihe.cn(轉載請保留)














